
- Aktuell verfügbar
Electro-Speicherheizgerät VSF 120/5 Flachbaur. elektron Laderegler
Technische Daten
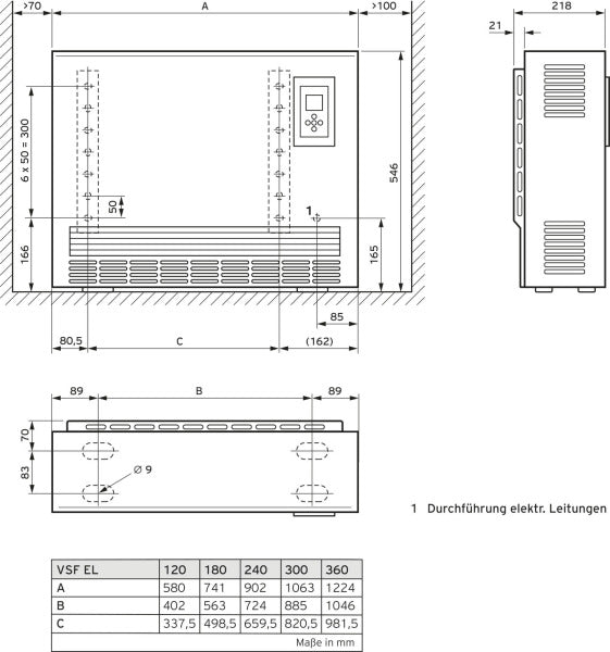
Elektro-Speicherheizgerät VSF 120/5 EL mit elektr. Laderegler Produktvorteile, Energieeffiziente Speicheraufladung dank exakter Restwärmeerfassung/ Speichernachladung über den elektronischen Aufladeregler, Elektronisch geregelte Wärmeabgabe über integrierten Entladeregler mit Zeitsteuerung und Fenster-offen- Erkennung, Bedarfsgerechte Raumtemperatur dank zeitlich einstellbarer Sollvorgabe (adaptive Startfunktion), Verbessertes Wärmerückhaltevermögen durch gekapselten Speicherkern und hochwertiger Wärmedämmung, Geringe Lüftergeräusche durch Lüfteraufhängung direkt an der Geräterückwand Ausstattung, Integrierter, elektronischer Auflade- und Entladeregler mit Zeitsteuerung (Wochenprogramm), Fenster-offen- Erkennung und adaptiver Startfunktion (ErP Ready), Umschaltbare, komplett vorverdrahtete Rohrheizkörper aus hochhitzebeständigem Edelstahl, Integriertes Wandabstandsgitter, serienmäßiger Flusenfilter integriert, Hochwertiges Stahlblechgehäuse, Farbe RAL 9016 verkehrsweiss, Einheitliche Kernsteingröße, Umbausatz zum Zweikreisspeicher, Zusatzheizung und Schnittstelle für DC Steuereingang als Zubehör erhältlich, Standkonsolen, Wand, / Stützkonsolen und externe Raumtemperaturregler als Zubehör erhältlich Heizleistung 1,2 kW Elektr. Leistungsaufnahme bei 3/N/PE 400V/50Hz, 100% 1,2 kW Elektr. Leistungsaufnahme bei 3/N/PE 400V/50Hz, 92% 1,1 kW Elektr. Leistungsaufnahme bei 3/N/PE 400V/50Hz, 84% 1,0 kW Elektr. Leistungsaufnahme bei 3/N/PE 400V/50Hz, 75% 0,9 kW Elektr. Leistungsaufnahme bei 1/N/PE 230V/50Hz, 100% 1,2 kW Maße (unverpackt) Höhe/Breite/Tiefe 546/580/198 mm Gewicht unverpackt 73,5 kg
Tiefe: |
198 mm |
Breite: |
580 mm |
Mit elektronischem Aufladeregler: |
ja |
An DC-Steuersystem anschließbar: |
ja |
Farbe: |
weiß (ws, rws, cws) |
Nennanschlussleistung: |
1.2 kW |
Nennspannung 1: |
400 V |
Nennspannung 2: |
230 V |
Mit vormontiertem Heizkörper: |
ja |
Mit Thermorelais: |
ja |
Mit Zusatzheizung: |
nein |
Anschlussleistung: |
0.9 – 1.2 kW |
Höhe: |
546 mm |
AC-Steuersystem wählbar: |
ja |
Mit Temperaturregler: |
ja |
Ausführung: |
Flachspeicher |
Anschlussspannung: |
400 V |
Gewicht: |
73.5 kg |
Anzahl der wählbaren Leistungsstufen: |
4 |
Störanzeige: |
Ja |
Flusensieb im Luftansaugbereich: |
Ja |
Mit statischer Entladung: |
nein |