
- Aktuell verfügbar
Vaillant Elektro-Warmwasserspeicher VEH 10 U eloSTOR plus
Technische Daten
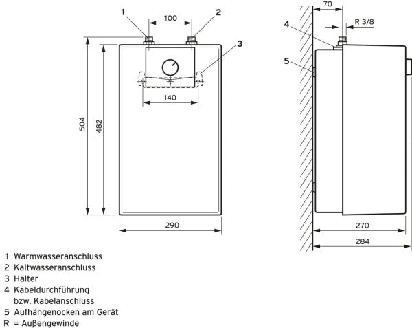
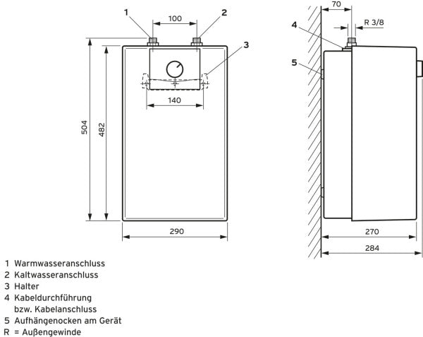
VEH 10/7 U Elektro-Speicher druckfest Untertisch Produktvorteile, Druckfester Untertisch-Wandspeicher, einfache Montage durch 230 V An- schlusskabel mit Schukostecker, Energiesparstellung bei 60 Grad C, Frostschutzfunktion, Aktivierbarer Verbrühschutz Ausstattung, Temperaturregler stufenlos ein- stellbar von 7 bis 85 Grad C, Spritzwasserschutz (IP 24 D), Sicherheitstemperaturbegrenzer, wiedereinschaltbar Nenninhalt 10 l Anschlusswert 2 kW Netzspannung 1/N/PE 230 V/50 Hz Mischwassermenge von 40 Grd.C 18,5 l Kalt-/Warmwasseranschluss R 1/2 Höhe/Breite/Tiefe 482/290/283 mm Gewicht (befüllt) 18 kg Jahreszeitbedingte Warmwasserbereitungs- Energieeffizienzklasse A (Spektrum A+ bis F)
Tiefe: |
284 mm |
Volumen des Behälters: |
10 l |
Anschlussspannung: |
230 - 230 V |
Breite: |
290 mm |
Höhe: |
482 mm |
Zapfprofil: |
XXS |
Niederdruckausführung: |
nein |
Duo-Ausführung: |
nein |
Schutzart (IP): |
IP24 (Fingerschutz und Schutz vor Fremdkörper > 12 mm und gegen Spritzwasser) |
Material Mantel: |
Kunststoff |
Energieeffizienzklasse: |
A |
Ausführungsform: |
hängend |
Werkstoff des Boilers: |
Stahl |
Durchmesser: |
290 mm |
Nennleistung: |
2 kW |
Dreiphasenausführung: |
nein |
Anschluss an Warmwasserleitung: |
nein |
Wandaufstellung: |
ja |
Frequenz: |
50 Hz |
Anschluss kaltes Trinkwasser: |
Außengewinde |
Datenblatt